Working principle:
The equipment uses the elevaor to lift pallet to the designated floor, and then uses the horizontal movement mechanism installed on the elevator to send pallet to the parking space; Or the opposite, the pallet on the designated parking space is transferred by the horizontal movement mechanism to the lifting mechanism, and the elevator is lowered to the entrance.
Features:
1. Generally, taking two cars as a level. The plane and space utilization rate is higher.
2. High speed, low noise, low vibration, meets the requirements of urban environmental protection;
3. Intelligent control, perfect safety guarantee, equipped with sound and light guide in and out of the garage, vehicle over-length detector, sensitive and reliable speed limit protector and multiple mechanical interlock to ensure the safety of vehicles and personnel;
4. The garage can be set up separately or in the building, and several sets can be set side by side;
5. The frame structure can be concrete or steel structure, which is diversified and convenient for users.
6. The garage has the function of automatic rotation turn, which can ensure that the vehicle can move forward into and out of the garage and facilitate the driver to enter and leave the garage.
7. The safety device is complete and reliable. Compared with the Puzzle parking, it not only increases the function of overall detection of vehicle length, width and height, but also can detect whether there are people in the garage, so as to reduce the potential safety hazard from the perspective of technology;
8. Simple operation, friendly interface touch screen, Moreover, the garage fault will be displayed in Chinese or English on the interface, which is convenient for maintenance;
9. PLC computer control, frequency control of motor speed, convenient and efficient.
Applications:
suitable for central area of the city,commercial center, office building, station, hospital, etc.
Parameters:
Vehicle Size | ≤5300*190*1550/2050mm |
Vehicle weight | ≤2350kg |
Storage mode | Forward |
Driving mode | Geared motor drive + chain/wire rope lifting |
Power supply | 3 Phase 5 wire 380v, 50Hz |
Control mode | Button/ IC Card/License plate recognition/APP reservation |
Average retrieval time(s)
| ≤90 |
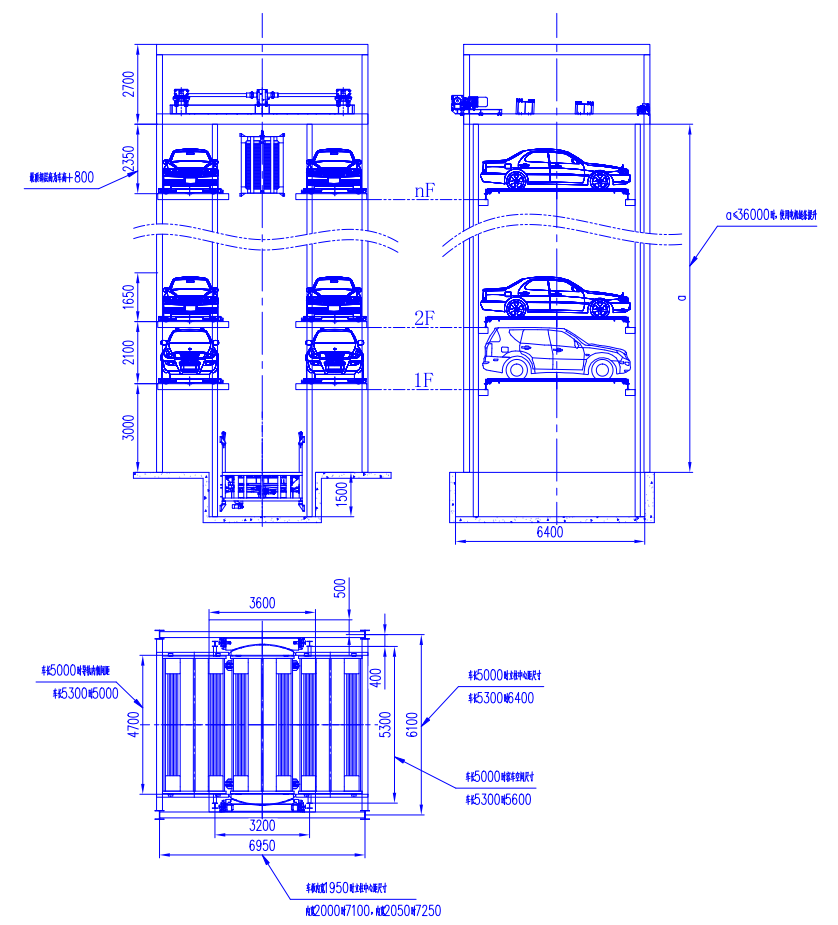
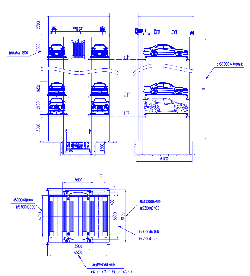
Equipment diagram:

If you have any questions, please fill out the form below and we will contact you as soon as possible
Add: No. 1319 Lingang Rd, Maoyuan industry park, Huangdao, Qingdao, China 266400
Tel: +86 532-83196289
Mobile: 135 5306 6166
Email: sales@auto-parker.com
© 2020 Qingdao Maoyuan Parking Equipment Manufacturing Co., Ltd. All Rights Reserved. Powered by HiCheng